無重力混合機可采用碳鋼、錳鋼、304不銹鋼、316L不銹鋼鋼、321不銹鋼以及其它材質的鋼材定制,并且不同材質也可以結合使用;設備選材時區分:與物料接觸部分以及非與物料接觸部分;混合機內部還可以針對性增加如防腐、防粘結、隔離、耐磨等功能性的涂層或保護層;不銹鋼表面處理分噴砂、拉絲、拋光、鏡面等處理方式,并可分別應用于不同的使用部位;
1:設備采用全不銹鋼制作,外表面拉絲亞光,內表面鏡面拋光2:設備采用全不銹鋼制作,外表面噴砂亞光處理3:設備采用與物料接觸部分不銹鋼,其它碳鋼4:設備采用碳鋼制作
無重力混合機根據物料性質、啟動方式、以及攪拌方式配置不同能力、不同功率、不同輸出轉速的驅動裝置。雙軸式無重力混合機由于內部槳葉成嚙合關系,配置的雙軸驅動動力需具備同步能力,升立公司推出四種驅動組合可用于不同的能力需求:雙齒輪箱同步組合式、單齒輪箱雙出式、雙行星齒輪同步式、過橋鏈輪鏈條式。 Sk系列雙齒輪箱同步組合為無重力混合機較優質的配置方式。
無重力混合機根據不同的物料性質可對雙軸槳葉進行適應性調整。 如:增設耐磨攪拌葉片、增設四氟攪拌葉片、鋸齒形攪拌葉等無重力混合機可增設高速破碎軸于筒體內部,配合攪拌物料流起打散作用。
無重力混合機常規配置雙門式翻板大開門出料閥,曲面翻板閥,完全貼合筒體弧面,確保攪拌無死角,使混合物料更加均勻。

無重力混合機裝載著兩根同時異向向外旋轉的平行槳葉軸,每根軸上搭載十字槳葉,在驅動裝置的同步作用下,兩根的十字槳葉軸的運行軌跡成相交關系,且錯位嚙合。驅動裝置驅使槳葉軸快速旋轉,旋轉的槳葉產生離心力,將物料有效拋灑至筒內上空部分,達到拋物線的最高點后下落(拋物線的最高點也稱為瞬間無重力狀態),物料再受槳葉的驅趕,在筒體內往復循環混合,并受雙軸的嚙合空間混合、剪切、分離,致使物料快速混合均勻。
|
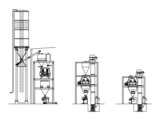
無重力干粉攪拌機配置于生產流程線上,組合原料倉、配料系統、輸送系統、成品倉、包裝設備,多樣組合,實現規模產業化生產,在組合過程中,應滿足設計的合理性,各時間點的搭配安排,實現較高效的生產。 |
![]() |